01 CHB3163q
02 CHB3150
03 CHB3165
04 CHB3158
05 CHB3147
06 CHB2365
07 CHB0244
08 CHB0191
09 CHB0246
10 CHB0255
11 CHB0229
12 CHB0223 1
13 CHB0214
14 CHB1727
15 CHB1736
16 CHB1742

Dörfli Oberlehn Walkringen

BAUHERRSCHAFT:

Friederika Stiftung Walkringen

MACHBARKEITSSTUDIE:

2019

PLANUNG:

2020 - 2022

AUSFÜHRUNG:

2022 - 2024

BAULEITUNG:

WS Projektmanagement GmbH, Burgdorf

AUSGANGSLAGE:

Der Landwirtschaftsbetrieb der Friederika Stiftung liegt an der östlichen Hügelkante im Oberlehn, oberhalb des Dorfes Walkringen, auf über 800 M.ü.M.
Das Bauernhaus von 1915 konnte Anfang 1980 durch die Stiftung erworben werden und im Jahr 2011 wurde auch das angrenzende Stöckli in den Besitz der Stiftung überschrieben. Dieses war jedoch bis 2019 durch ein bestehendes Wohnrecht besetzt.
Im Oberlehn können Lernende der Stiftung während zwei Jahren eine Ausbildung in den Bereichen Landwirtschaft und Hauswirtschaft - Landwirtschaft absolvieren. In Begleitung ihrer Ausbilder / Betreuer arbeiten, lernen, wohnen und leben die Jugendlichen während der Ausbildung auf dem Betrieb. Aufgrund der wachsenden Nachfrage nach dieser Art von Ausbildungsplätzen beauftragte die Friederika Stiftung das Büro Schär Buri Architekten, einerseits das räumliche Angebot im Bereich des Stöckli auszubauen sowie die bestehenden Räumlichkeiten im Bauernhaus und im Ökonomietrakt zu sanieren und auf die aktuellen Anforderungen, Wünsche und Gesetzgebungen anzupassen.

PROJEKT:

Das Gehöft Oberlehn besteht aus einer ortstypischen Häusergruppe, gelegen im Landschaftsschutzgebiet am steilen Westhang des Golpisbergs in Walkringen. Das Bauernhaus als Hauptgebäude ist umgeben von mehreren Kleinbauten. Die Giebelfronten des traditionellen Berner Bauernhauses und des nebenliegenden Stöcklis orientieren sich klar auf den auf der Südseite gelegenen, terrassierten Vorgarten.
Die realisierten Massnahmen respektieren trotz notwendiger Vergrösserung des Raumangebotes die für das Ortsbild entscheidende, vorhandene Massstäblichkeit.
Das Äussere des Bauernhauses erfuhr keine volumetrischen Veränderungen, es waren lediglich Unterhalts- und Sanierungsarbeiten umgesetzt worden.
Der Ersatzneubau des Stöcklis orientierte sich an der Volumetrie des alten Stöcklis und lehnt sich als Holzbau an die traditionell vorherrschende Bauweise an. 
Die ruhige Silhouette des neuen Schopfes fügt sich bestmöglich in den Hang ein und die Ankunftsseite ist nun wesentlich einladender gestaltet.
Zusammen mit einer sorgfältigen, ganzheitlich betrachteten Umgebungsgestaltung konnte das „Dörfli Oberlehn“ als zukunftsträchtiger Standort für die Stiftung langfristig aufgewertet werden.

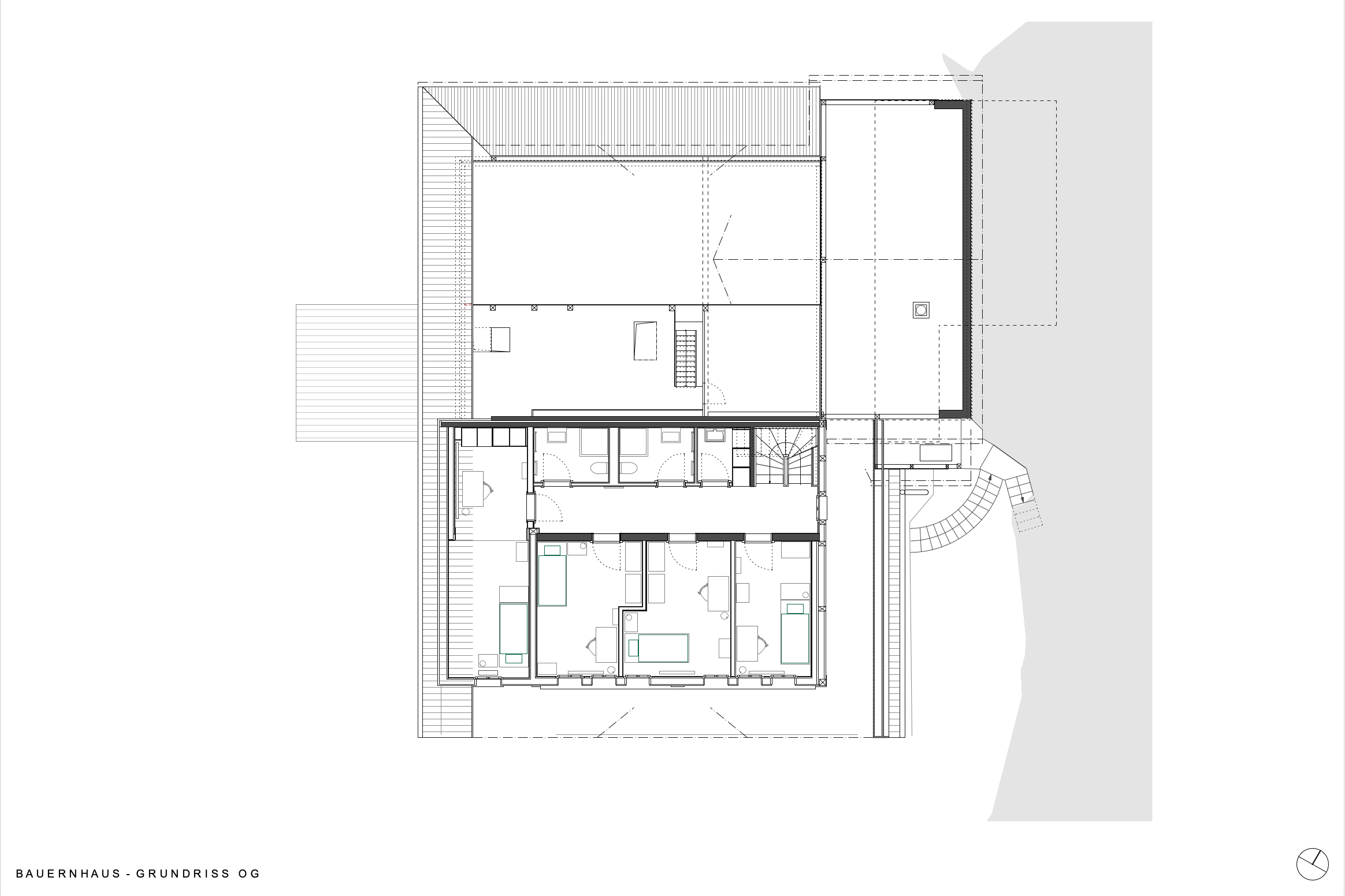
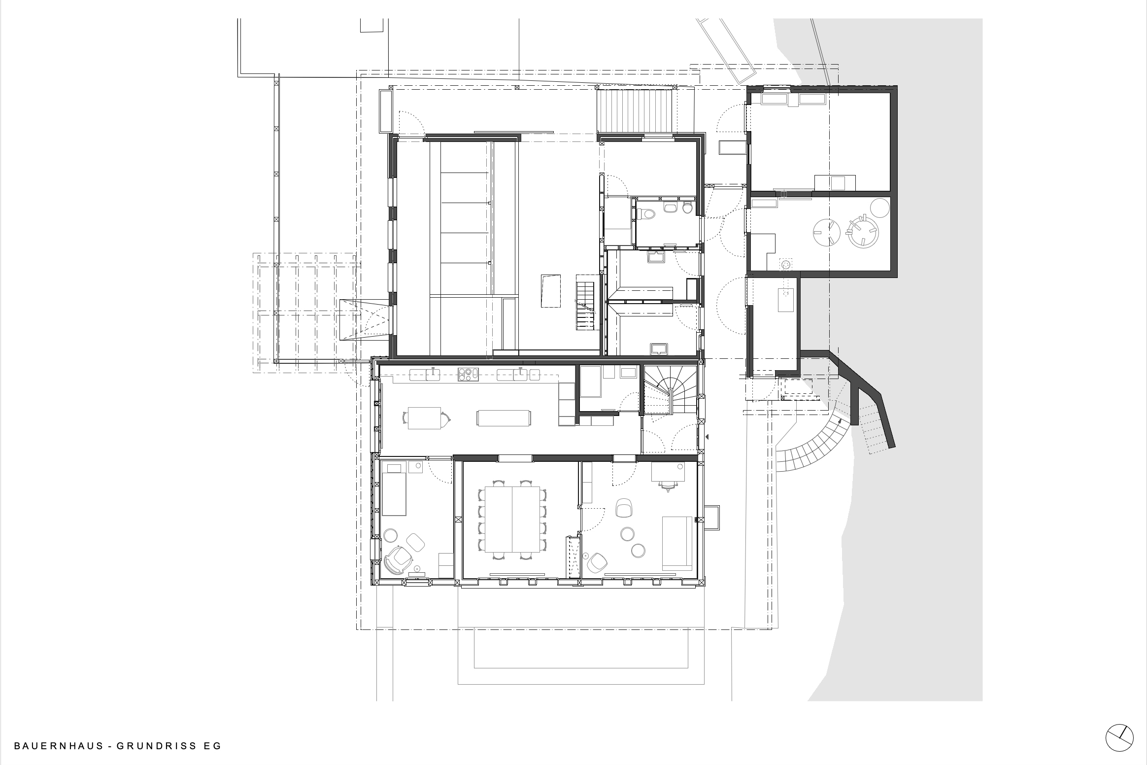
BAUERNHAUS:

Das Bauernhaus wurde so saniert, dass es in einen neuen Lebenszyklus überführt werden konnte.
Dazu waren die Erneuerung des gesamten Daches inkl. Solaranlage, Teilbereichen der Fassaden sowie der Ersatz sämtlicher Holzfenster notwendig.
Im Innenbereich mussten im Erdgeschoss die Küche komplett erneuert sowie die Nasszelle saniert werden. Die Wohnräume konnten grundsätzlich belassen werden, lediglich die alten Holzriemenböden wurden aufgefrischt.
Im Obergeschoss war anhand einer neuen Einteilung eine Reduktion der Bewohnerzimmer von fünf auf vier Zimmer zugunsten grösserer Zimmerflächen notwendig. Mit dieser Massnahme können die geforderten Minimalflächen durch die GSI eingehalten werden.
Die Nasszellen wurden auch in diesem Geschoss komplett saniert und neu auf zwei Räume (Damen/Herren) aufgeteilt.
Die ausserhalb des Wohnbereichs angelegten zwei Garderoben für je sechs Lernende wurden neu unterteilt und ein Tages-WC, welches von aussen zugänglich ist, neu erstellt.
Aufgrund der beschriebenen Eingriffe mussten folglich auch sämtliche haustechnische Installationen erneuert werden.

STÖCKLI:

Das neue Stöckli besteht aus einem schlichten, zweigeschossigen Holzelementbau, welcher auf einem Kellergeschoss aus Ortbeton aufliegt.
Die Situierung sowie die Gebäudebreite entsprechen der des alten Stöckli.
Der Sockel und die erdberührenden Bereiche des Erdgeschosses sind in Ortbeton erstellt. Die restliche Konstruktion ist als einfacher Holzständerbau konzipiert, auf welchem ein Satteldach mit Ziegeleindeckung aufliegt. Die Fenster, Türen sowie der sommerliche Wärmeschutz sind ebenso in Holz ausgeführt.
Beidseitig des Stöckli sind zwei Aussensitzplätze angeordnet. Diese bieten eine fantastische Fernsicht und laden an schönen Tagen zum gemeinsamen Verweilen, Essen und Spielen ein. Über den ostseitigen Sitzplatz erfolgt gleichzeitig die Haupterschliessung des Gebäudes.
Im Untergeschoss sind für die Betreuer / Ausbilder eine neue Garderobe mit WC / DU und direktem Aussenzugang sowie die übrigen Nebenräume und ein Gemüse- und Obstkeller, welcher über einen separaten Aussenzugang verfügt, untergebracht.
Über eine interne Treppe gelangt man in den Haupteingangsbereich des Erdgeschosses, von welchem aus man in die Schulungs-, Wohn- und Büroräumlichkeiten gelangt.
Via den zweiten Treppenaufgang erreicht man das Obergeschoss, wo sich südostseitig vier gleichwertige Bewohnerzimmer plus zwei Nasszellen befinden.

SCHOPF:

Der neue Schopf wird durch ein einfaches, sich in Richtung Stöckli verjüngendes Volumen gebildet. Eine L-förmige Stützmauer aus Beton bettet sich entlang der Höhenkurven in den Hang hinein. Darauf kommt eine Dachkonstruktion aus Holz zu liegen. Die gewählte Gefällsrichtung des Daches bringt den Vorteil, dass der Unterstand optimal von Witterungseinflüssen geschützt wird und die Raumhöhe dort am grössten ist, wo sie auch gut genutzt werden kann.
Die hangseitige Dachkante verläuft auf einer gleichbleibenden Höhe, während die talseitige Dachkante parallel zum Terrainverlauf des Weges abfällt.
Im neuen Unterstand ist Platz für landwirtschaftliche Fahrzeuge, PW und einen Kleinbus sowie für diverse Geräte und Materiallager vorhanden. Der Unterstand wird durch den geschlossenen Einbau von Garage mit Werkstatt in drei Teile gegliedert.

Schär Buri Architekten BSA SIA | Ostermundigenstrasse 73 | 3006 Bern | T +41 31 357 53 88 | info@schaerburi.ch | Impressum | Disclaimer